Объявление
Проектирование, оформление магазина, торгового пространства - Витрины, другая специальная мебель
Продам, предлагаю - частное лицо: Витрины, другая специальная мебель, Украина, Харьков и областьКод: 769049 Создано: 17-04-2020 10:29
Цена: 1 450 грн. ₴
|
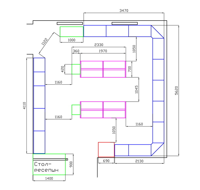
http://torgovoe-oborudovanie.in.ua/ Проектирование, расстановка, оформление, оборудование магазина, торгового пространства Торговые стеллажи Полные и приставные, пристенные (односторонние) и островные (двусторонние). Возможно изготовление под заказ индивидуальных изделий по параметрам заказчика Консультации, замеры, составление расстановки и комплектации, 3D визуализация, доставка, монтаж. Больше инфо и фото на сайте http://torgovoe-oborudovanie.in.ua |
|
Картинки
Контактные данные
| Имя: |
Александр |
|
| Контактный телефон: |
096 856 10 71 |


